Fotos Gran casa histórica independiente en Intra con jardín privado

Verbania Mansión histórica en venta

Gran casa histórica independiente en Intra con jardín privado

Verbania, Via della Resistenza, Piamonte, Italia

EUR 620.000
  1. Comisión 3,5%
  1. Mansión histórica
  2. Año de construcción 1900
  3. 287 m² Sup. construida
  4. 680 m² Terreno
  5. 8 Habitaciones
  6. 6 Dormitorios
  7. 3 Baños
  8. 3 Pisos

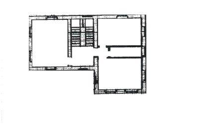
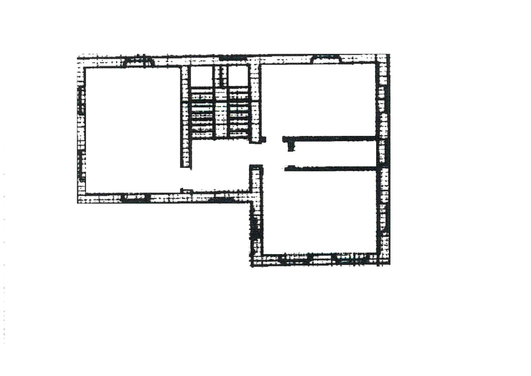
A pocos pasos del centro de Intra y del paseo del lago, se ofrece esta casa histórica independiente de finales del siglo XIX en estado mayormente original. Las cuatro plantas cuentan con estancias amplias y luminosas, conectadas por una escalera ancha.

La planta baja incluye el hall de entrada, varias habitaciones con chimeneas, una cocina habitable y un cuarto de lavandería.

Los dormitorios principales se encuentran en el primer piso e incluyen un gran dormitorio principal con baño privado, dos dormitorios adicionales y un segundo baño. La buhardilla convertida ofrece tres habitaciones más y un baño, aptos para invitados, oficina o espacio de ocio.

El sótano alberga dos estancias abovedadas, incluida la sala de calderas.

La casa conserva detalles arquitectónicos y materiales originales, permitiendo una renovación conservadora. La entrada principal está diseñada de manera representativa.

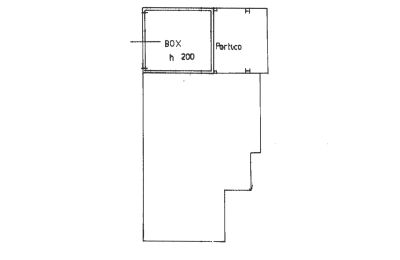
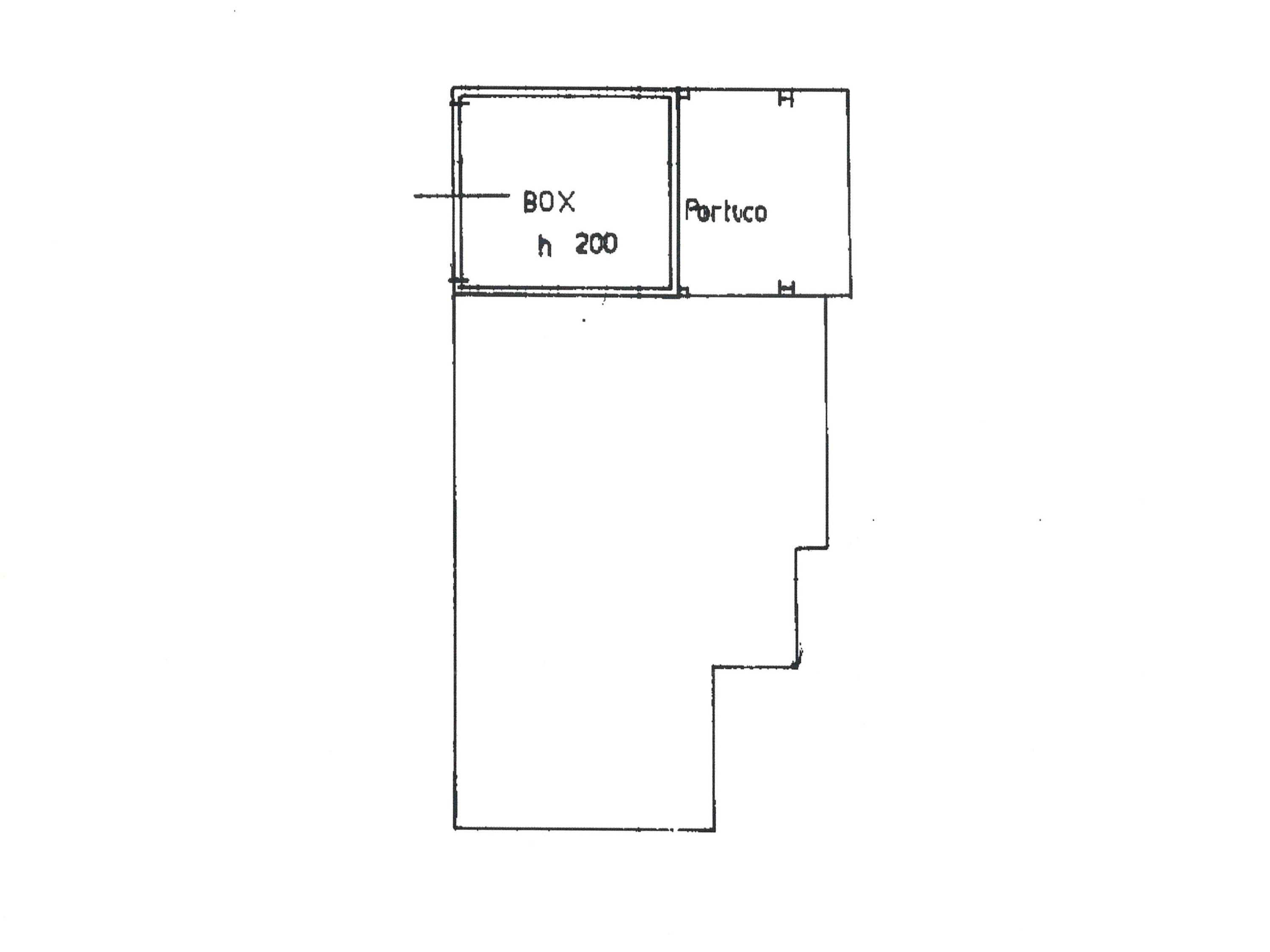
La propiedad incluye un jardín privado y un garaje.

  • Distancias:
  • Centro de Intra – a pie
  • Paseo del lago – a pie
  • Verbania – pocos minutos
  • Milán – aprox. 1 h 30 min
  • Aeropuerto de Malpensa (MXP) – aprox. 1 h

Planos de planta

Información legal

Agencia

Città Ideale

Corso Mameli 203

28921 Verbania Intra

Italia
Contacto
Fijo: +39 0323 407435
Suscribirse a Città Ideale

Reciba nuevas ofertas inmobiliarias de este proveedor por correo electrónico. La búsqueda se puede desactivar en cualquier momento.

  • REALPORTICO-ID
    2795073
  • Última edición
    el mes pasado
  • Vistas de página
    1.18k
  • Personas alcanzadas
    990
Esta oferta inmobiliaria llega a la mayoría de las personas en estos países
Vistas últimos 30 días

Città Ideale

Descubre más propiedades históricas

28824 Oggebbio, Piamonte
Casa histórica con vistas al Lago Maggiore en Oggebbio
28823 Ghiffa, Piamonte
Casa histórica restaurada con tres unidades residenciales y vistas al lago
28823 Ghiffa, Piamonte
Mansión histórica en el Lago Mayor