Villa en Stresa junto al Lago Mayor

28838 Stresa, via Principe di Piemonte, Piamonte, Italia

EUR 595.000
  1. Mansión histórica
  2. Año de construcción 1930
  3. Última modernización 2016
  4. 307 m² Sup. habitable
  5. 530 m² Terreno
  6. 8 Habitaciones
  7. 3 Dormitorios
  8. 4 Baños
  9. 4 Pisos

Esta villa en Stresa, construida en 1930 y ampliada en 1997 con una planta superior panorámica, combina el estilo clásico con la comodidad moderna. La propiedad tiene aproximadamente 307 m² distribuidos en cuatro plantas, con estancias luminosas y detalles históricos, orientadas al sureste-oeste para disfrutar de luz natural durante todo el día. 

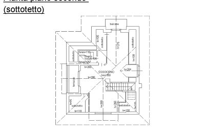
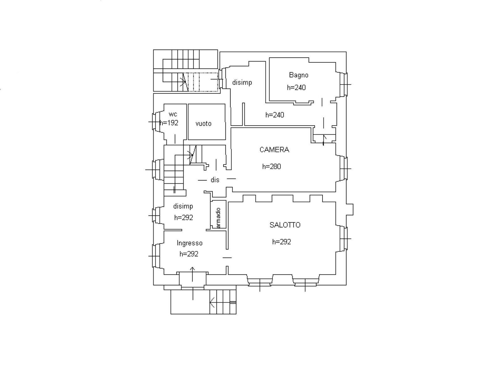
La villa cuenta con un gran sótano que incluye una taverna, garaje para tres coches, trastero y sala técnica. La planta baja dispone de hall de entrada, pasillos, salón, dormitorio doble y dos baños. En la primera planta se encuentran un salón, dos cocinas con acceso al balcón, un pasillo que conduce a un balcón alargado, un dormitorio doble y un baño. La segunda planta ofrece un amplio espacio abierto utilizado como zona de estar y trabajo, con balcón y terraza panorámica, además de un baño. 

Entre sus características destacan las ventanas de madera con doble acristalamiento estilo Art Nouveau, mobiliario a medida y chimeneas. La villa se ofrece parcialmente amueblada y, gracias a entradas independientes, se puede dividir fácilmente en tres unidades residenciales. La calefacción es mediante gas eficiente. 

En el exterior, un jardín privado de 530 m² proporciona un entorno tranquilo y aislado, ideal para el descanso.

Su ubicación estratégica permite un acceso cómodo a la autopista A26 y a la estación de tren de Stresa, facilitando visitas a las Islas Borromeas y a los famosos jardines botánicos. El aeropuerto de Milán-Malpensa se encuentra a aproximadamente 45 minutos.

Esta villa representa una oportunidad única para quienes buscan residir o invertir en una de las zonas más exclusivas y pintorescas del Lago Mayor.

Características y detalles

Estado
Parcialmente restaurado
Ubicación
Ciudad
Vista
Vista al jardín Vista al lago
Estilo arquitectónico
Art Nouveau
Detalles arquitectónicos
Chimenea Vidrieras Balcón
Características del terreno
Jardín
Uso actual
Propiedad residencial
Construcción y fachada
Edificio independiente Sótano Fachada enlucida
Cubierta
Tejado a dos aguas
Ventanas
Marco de ventana de madera
Revestimiento de suelo
Azulejos históricos Parquet Granito
Tipo de calefacción
Calefacción de pisos
Combustible
Gas Leña
Servicios
Terreno urbanizado
Entorno e infraestructuras
Centro comercial Servicios médicos Conexiones de transporte Gastronomía
Utilización futura
Residencia privada/Residencia familiar
Información legal

Agencia

Città Ideale

Corso Mameli 203

28921 Verbania Intra

Italia
Contacto
Fijo: +39 0323 407435
Suscribirse a Città Ideale

Reciba nuevas ofertas inmobiliarias de este proveedor por correo electrónico. La búsqueda se puede desactivar en cualquier momento.

  • REALPORTICO-ID
    2606399
  • Última edición
    el mes pasado
  • Vistas de página
    6.08k
  • Personas alcanzadas
    5.32k
Esta oferta inmobiliaria llega a la mayoría de las personas en estos países
Vistas últimos 30 días

Città Ideale

Descubre más propiedades históricas

28823 Ghiffa, Piamonte
Mansión histórica en el Lago Mayor
Verbania, Piamonte
Gran casa histórica independiente en Intra con jardín privado
28040 Lesa, Piamonte
Luminoso ático de 150 m2 a orillas del lago de Lesa en palacio histórico con terraza