Cerca de 600 años de historia – Casa señorial del siglo XV en venta en Kremnica

Kremnica, Kutnohorská 2, Banskobystrický kraj, Eslovaquia

  1. Casa urbana
  2. Año de construcción 1434
  3. Última modernización 2020
  4. Bien protegido
  5. 776 m² Superficie construida
  6. 645 m² Terreno
  7. 15 Habitaciones
  8. 8 Baños
  9. 4 Pisos

Esta casa de estilo gótico y renacentista se encuentra en la calle Kutnohorská, justo debajo del castillo de Kremnica. Su historia se remonta al año 1434. Un registro fiscal de 1442 menciona como primer propietario a un tal Wilhelm Gros. Actualmente está catalogada como monumento cultural y pertenece a un propietario privado. 

¿Por qué es especial esta propiedad? 

  • Historia y prestigio – Adquiera un monumento que ha resistido el paso de los siglos y refleja la historia de Kremnica desde el gótico hasta la actualidad. 
  • Arquitectura notable – Mirador cilíndrico con tejado piramidal, bóvedas góticas cruzadas poco comunes, bóvedas prusianas y marcos de piedra originales. 
  • 95 % renovada – Las inversiones de la última década permiten una finalización rápida, sin largas obras y adaptada a sus planes. 
  • Ubicación inmejorable – En el corazón histórico de Kremnica, con vistas panorámicas y espacio para aparcar tres vehículos. 
  • Uso versátil – Superficie de 776 m², con 15 habitaciones y 8 baños distribuidos en cuatro plantas. 

Para particulares exigentes:
¿Busca una residencia extraordinaria lejos de lo convencional? Esta casa ofrece una forma de habitar con historia que ninguna villa moderna puede ofrecer. Su condición de monumento cultural nacional también representa una inversión sostenible en patrimonio.

Para empresas:
¿Tiene la visión para transformar un espacio histórico en una experiencia única para sus clientes? Existe un proyecto aprobado con permiso de obras para reconvertir la propiedad en casa de huéspedes con restaurante y bodega. Los espacios son ideales para:

  • Hotel boutique con atmósfera única
  • Restaurante exclusivo o bodega en auténticas bóvedas góticas
  • Oficinas representativas con posibilidad de alojar a clientes VIP
  • Galería, museo o espacio para eventos con carácter

La propiedad está en fase previa a la aprobación final, con todas las obras esenciales ya realizadas respetando los valores de conservación.

Una oportunidad que solo se presenta una vez por generación. Vincule su nombre a uno de los edificios históricos más importantes de la región y cree un legado que perdure durante siglos.

Contácteme para una visita discreta e información técnica.

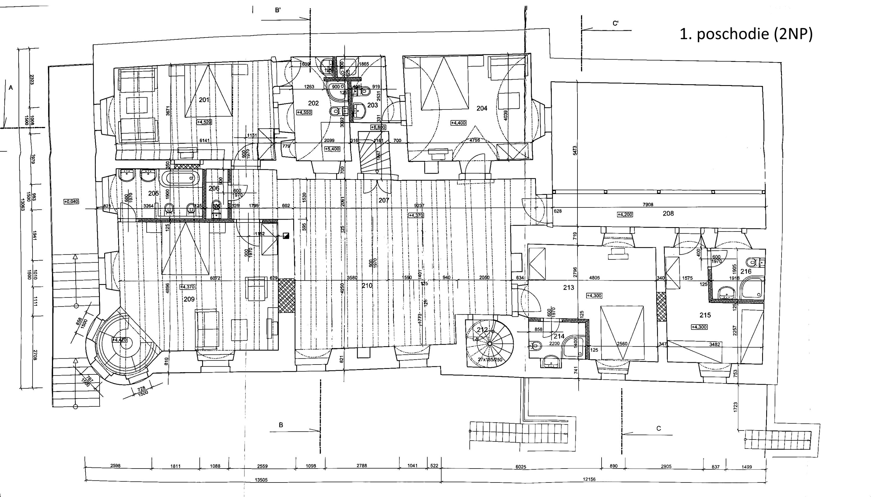
Planos de planta

Información legal

Agencia
Svätoplukova 16791/30
82109 Bratislava, SK
Mgr. Vladimír Gábor

Riešime bývanie, s.r.o.

  • REALPORTICO-ID
    2416825
  • Última edición
    hace 19 días
Esta propiedad se presenta como un anuncio gratuito con visibilidad local.

Con un anuncio premium maximiza su alcance y se beneficia de visibilidad global, presentación sin anuncios, estadísticas detalladas y promociones exclusivas. REALPORTICO es compatible con cualquier CMS y ofrece opciones de transferencia personalizadas bajo solicitud. Contáctenos para recibir una oferta personalizada.

Publicidad

Casa urbana Banskobystrický kraj

noviembre 2025

Cree una alerta por correo electrónico para recibir información sobre nuevas propiedades, o regístrese en Portico Secrets para acceder a más propiedades exclusivas que no están listadas públicamente.

Aún más por descubrir